
池袋・目白・雑司が谷 周辺の
”程よい広さの物件”です。
事務所・ビジネス拠点をお探しの方!
ロンアイル池袋
約95㎡ の
「程よい広さ」の物件!
ビジネス拠点をお探しの方! 明治通り沿いに面する便利な立地、
店舗・事務所用の賃貸物件(95.83㎡)の情報です。
11月下旬より、入居可能予定です!
(工事状況により前後する場合があります。)
是非お問合わせください
ロンアイル池袋 エントランス


良好なアクセス
- 池袋駅東口・南口に面する明治通りを新宿方向にそのまま徒歩で約9分
- 山手線 目白駅 から徒歩約7分、地下鉄副都心線 雑司が谷駅、都電荒川線 鬼子母神前 から徒歩約5分
- ロンアイル池袋は、東京都豊島区目白の閑静な環境と商業都市池袋のビジネスライクな環境を合わせ持つ立地のオフィスビルです

ロンアイル池袋 401号室内(5階建の4階の部屋)

別室の画像ですが、参考までにご覧ください。

募集条件
店舗・事務所向け
入居可能時期は、工事の状況により、多少前後するため、最新情報は、お問い合わせください。
専有面積 | 95.83 ㎡ |
構造 | 鉄筋コンクリート造 5階建の 4階 (1986年5月築) |
所在地 | 東京都豊島区目白2-16-22 ロンアイル池袋 401号 |
賃料 | 291,500円(税込) |
管理費 | 38,500円(税込) |
その他 | 水道料料金、案内板料等 |
礼金 | 2か月 |
保証金 | 3か月(償却1か月) |
契約・更新等 | 諸手数料要 |
※ 詳細は、センチュリー21パキラハウス ホームページ にて
※ リンクが切れ、募集終了の表示が出る場合がありますが、その際は、下記の「問い合わせ先」または、こちらのリンクよりご確認ください。
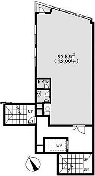
間取り
※ 最終的に一部レイアウトが変更になる可能性があります。現場での状態が優先されます。

- 95.83㎡ の広い間取り
・・・要望の多い広さの物件です!
- 明治通りに面する視界の開けた窓
+ ミニバルコニー付き
- 駐輪場あり
(有料:空き状況確認要)

お問い合わせは
TEL: 03-3984-0021
センチュリー21パキラハウス へ
※ センチュリー21パキラハウス は、ロンアイル池袋 の 管理会社です。